Logotipo de Estucar Interiores ESTUCAR INTERIORES Estudio Carcabón
ES EN
Dormitorio juvenil — estudio y almacenaje (resultado real)

Transformación Dormitorio juvenil · Madrid

Optimización espacial en dormitorio juvenil de superficie reducida, resuelto mediante un sistema continuo de mobiliario integrado que concentra descanso, estudio y almacenaje sin intervención de obra.

La propuesta se apoya en modulación precisa, control de alturas y continuidad de planos, priorizando viabilidad constructiva y claridad en ejecución, con validación en resultado real.

Superficie 9 m²
Objetivo Definición de sistema · documentación de apoyo · gestión de compras y logística de mobiliario
Resolución Criterio de interiorismo · coordinación con proveedores · acompañamiento puntual durante la ejecución

Contexto

Condicionantes, objetivo operativo y traducción a ejecución.

El espacio original planteaba una geometría ajustada y un programa exigente para su superficie: descanso, puesto de estudio funcional y capacidad real de almacenaje, con un uso intensivo y evolución en el tiempo.

El objetivo fue resolver el programa completo sin fragmentar el espacio, evitando piezas independientes y apostando por una solución unitaria que facilitara la lectura espacial y la ejecución. La intervención se plantea sin obra, trabajando mediante proporción, modulación y sistema, con atención a alturas útiles, encuentros y continuidad de planos.

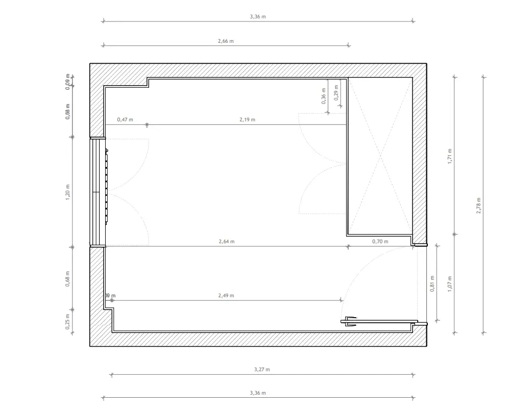
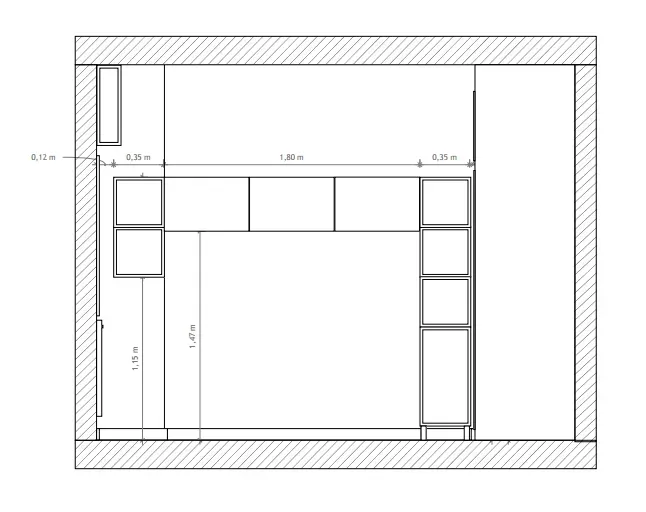
Planteamiento

Lectura rápida · verificación dimensional · soporte a coordinación.

Planta acotada para encaje real del programa, alzados para control de alturas y encuentros, y axonometría para lectura del conjunto. En coordinación, una lámina de instalación aporta trazabilidad y reduce interpretaciones en taller/obra.

Documentación gráfica: axonométrica, planta acotada y alzados
DOCUMENTACIÓN GRÁFICA · Planta · alzados · axonometría

Propuesta

Programa completo en 9 m²: jerarquía, continuidad y viabilidad.

La solución se concibe como un sistema continuo donde cada pieza responde a una lógica común de modulación y alineación. Se prioriza continuidad horizontal para ampliar percepción espacial, control estricto de profundidades y pasos libres, e integración del puesto de estudio como parte estructural del conjunto. La iluminación se incorpora como componente del sistema (posición y alturas), evitando elementos añadidos que comprometan ejecución o mantenimiento.

Render: vista general del sistema
PROPUESTA 3D · lectura del espacio

Sistema continuo

Se articula un frente único como sistema modular que integra trabajo, almacenaje y soporte lumínico, con criterio dimensional y control de alineaciones para garantizar viabilidad de ejecución y lectura limpia.

  • Plano de trabajo dimensionado para uso prolongado, con profundidad y altura verificadas.
  • Almacenaje inmediato + fondo (temporada), con jerarquía de accesibilidad y capacidad útil real.
  • Ritmo controlado de huecos y cerrados + luz integrada, para continuidad y reducción de interferencias.
Visualización 3D · zona de estudio
PROPUESTA 3D · ESTUDIO Y ALMACENAJE

Proporción y uso

Se definen cotas, alturas y tolerancias para asegurar compatibilidad entre carpintería, instalación eléctrica y uso real, evitando interferencias y garantizando una ejecución precisa sin necesidad de obra.

  • Dimensionado según ergonomía y secuencia de uso.
  • Iluminación integrada (puntual + ambiente) con posición y altura coordinadas.
  • Solución desmontable y adaptable, adecuada para entornos de vivienda en alquiler.

Ejecución

Puntos críticos: replanteo, puntos eléctricos y encuentros.

En coordinación se fijan ejes, cotas y encuentros para asegurar continuidad de líneas y evitar ajustes en obra. Se definen alturas y posiciones de tomas/puntos de luz (según alcance), el paso de cableado y la secuencia de montaje, garantizando un sistema ejecutable sin improvisación y compatible con tolerancias de carpintería e instalación.

Ejecución: instalación de módulos de almacenaje
Instalación de módulos · modulación y encaje
Ejecución: integración y encuentro
Integración · encuentro y continuidad

Resultado

Validación en ejecución: coherencia entre planteamiento y resultado construido.

El resultado confirma la eficacia del sistema planteado: encaje preciso, continuidad de planos y compatibilidad entre modulación, iluminación y uso real. La ejecución mantiene la lectura unitaria prevista, minimizando ajustes en obra y garantizando un funcionamiento claro del conjunto.

En 9 m², el éxito no reside en añadir elementos, sino en resolver el programa completo mediante criterio dimensional, coordinación y control de encuentros.

Comparativa — propuesta y resultado
COMPARATIVA · PROPUESTA vs RESULTADO
Resultado real — frente de estudio
RESULTADO REAL · FRENTE DE ESTUDIO
Resultado real — vista general del conjunto ejecutado
RESULTADO REAL · VISTA GENERAL DEL CONJUNTO

¿Colaboramos? Interiorismo como soporte de proyecto y obra: criterios, documentación útil y coordinación de acabados/iluminación, con alcance, entregables y calendario definidos desde el inicio.

O si lo prefieres, escríbeme directamente: